Claremore, OK | Start and End Date: 2022
Rogers County Health Department
Progress Without Pause.
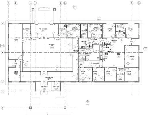
The Rogers County Health Department project was completed in two phases: a full renovation of the 5,000 sq. ft. public annex and partial updates to the 15,800 sq. ft. main facility, where all finishes were entirely updated despite the scope being limited to certain areas. Construction was planned so operations could continue throughout the remodel.
Contact Us
Ready to start a project or interested in learning more? Please fill out our contact form with details about your request, and someone from our team will be in touch.
520 South Osage Avenue
Bartlesville, OK 74003
918.336.3512
info@horizonline.studio
